
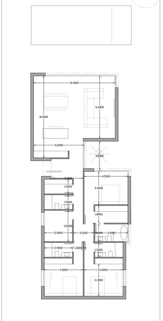
Two storey house 5 bedrooms and 4 bathrooms – 240 constructed meters. Located in La Canada, Valencia on street 202. Same qualities as Mazari Villa. Price: 870.000 + VAT (10%). Payment: by construction phases. (autopromotor). (bank financing possible). Estimated sales price when finished 980.000 + VAT. Possibility to make a basement of any size.



